PLOT OF LAND AVAILABLE IN FANTASTIC LOCATION CLOSE TO CANTERBURY'S CITY CENTRE!
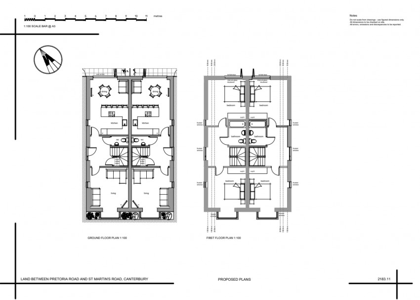
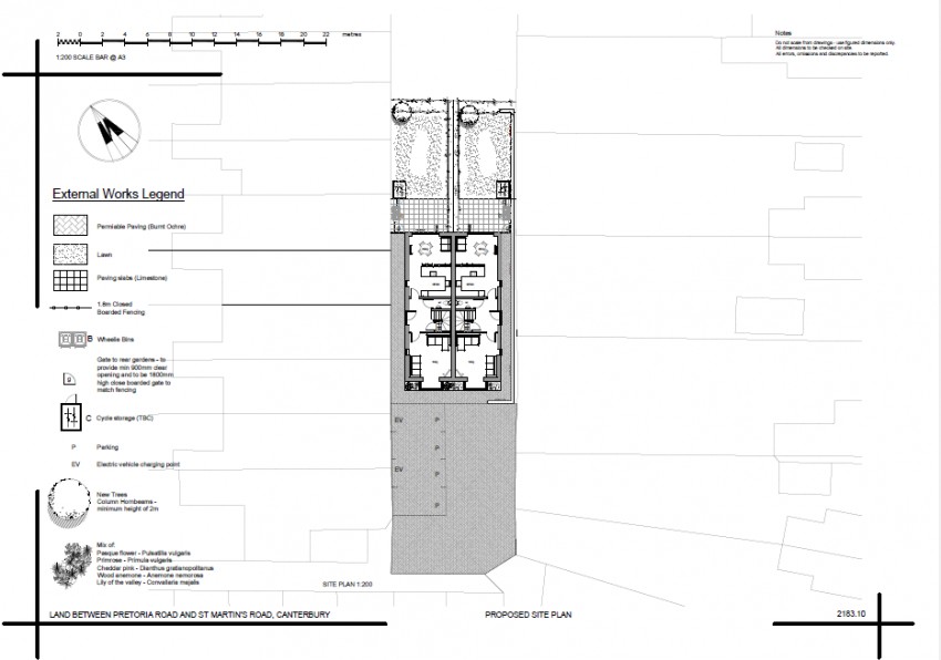
The plot comes with recommended planning approval for a pair of two semi-detached units, pending the implementation of the necessary mitigation measures for the Stodmarsh nitrates issue.
Call Woodward & Bishopp for more information.
PLOT OF LAND AVAILABLE IN FANTASTIC LOCATION CLOSE TO CANTERBURY'S CITY CENTRE!
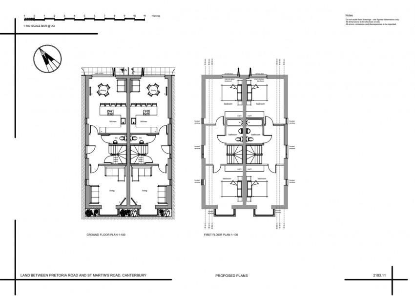
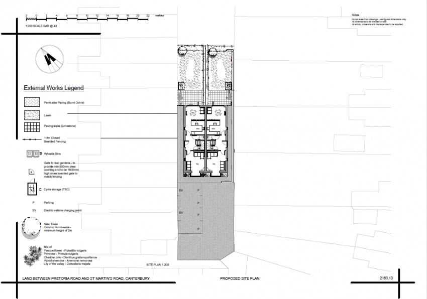
The plot comes with recommended planning approval for a pair of two semi-detached units, pending the implementation of the necessary mitigation measures for the Stodmarsh nitrates issue.
Call Woodward & Bishopp for more information.