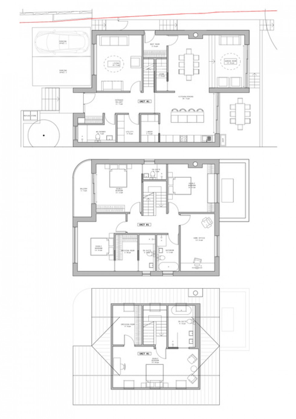
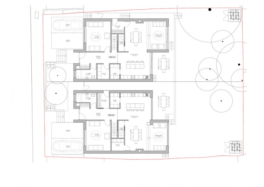
PLANNING PERMISSION GRANTED | 2 x EXCEPTIONAL HOMES | STUNNING SEA VIEWS
Rare opportunity to acquire a site in an elevated position, offering stunning sea views across a vibrant roofscape in coastal Whitstable. The site has PLANNING PERMISSION GRANTED for 2 x detached two-storey dwellings, with a large roof space that offers further accommodation potential. Each property delivers a gross internal area of 256sqm (2755 sqft), and offers scope for versatile accommodation, with a number of configuration options. The properties have been designed to exacting standards, in order to meet the demands of modern living. Please call Woodward & Bishopp to enquire further about this site.
Canterbury City Council Planning Application: CA/25/01891
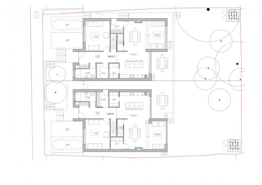
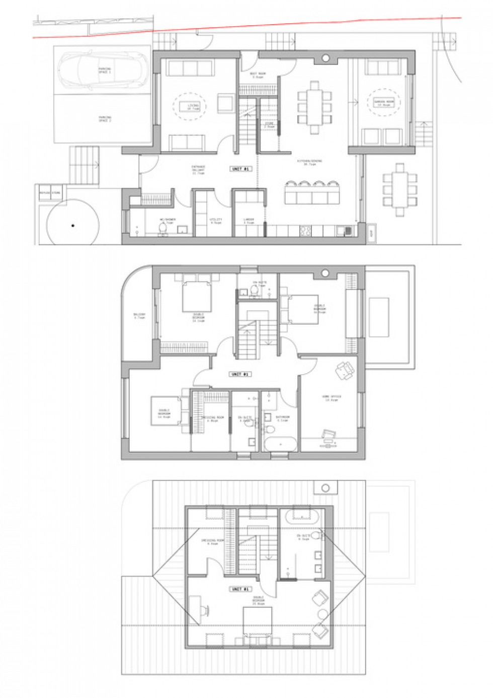
PLANNING PERMISSION GRANTED | 2 x EXCEPTIONAL HOMES | STUNNING SEA VIEWS
Rare opportunity to acquire a site in an elevated position, offering stunning sea views across a vibrant roofscape in coastal Whitstable. The site has PLANNING PERMISSION GRANTED for 2 x detached two-storey dwellings, with a large roof space that offers further accommodation potential. Each property delivers a gross internal area of 256sqm (2755 sqft), and offers scope for versatile accommodation, with a number of configuration options. The properties have been designed to exacting standards, in order to meet the demands of modern living. Please call Woodward & Bishopp to enquire further about this site.
Canterbury City Council Planning Application: CA/25/01891