Woodward & Bishopp are delighted to market this rare opportunity to acquire commercial premises in the centre of Whitstable's conservation area. Just round the corner from the bustling High Street and Harbour, this former meeting hall and adjoining car park are being developed as a mixed use site. Whilst the larger portion of the site will be developed into a number of residential dwellings, our client is offering for sale one part of the existing building to be used as commercial premises; Use Class F1 & F2.
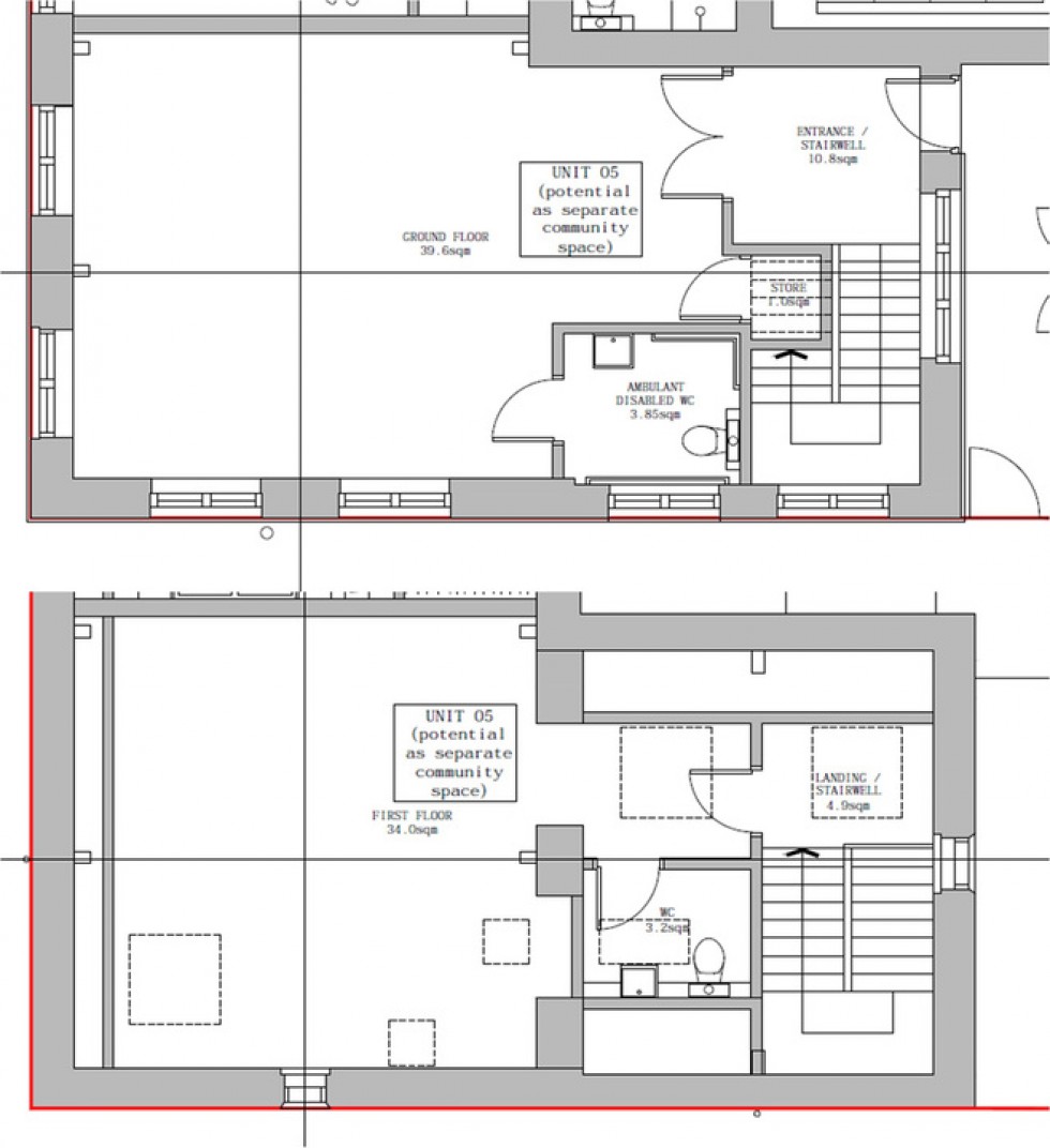
"Albert Street Commercial" comprises approximately 73sqm GIA (786sqf) of floor space, arranged across a ground floor (39sqm) and first floor (34sqm), the latter yet to be constructed. As the premises are currently at Base Build stage, there is an opportunity to finish the property to the purchaser's standard and preference.
Please contact Woodward & Bishopp directly regarding any enquiries.
Woodward & Bishopp are delighted to market this rare opportunity to acquire commercial premises in the centre of Whitstable's conservation area. Just round the corner from the bustling High Street and Harbour, this former meeting hall and adjoining car park are being developed as a mixed use site. Whilst the larger portion of the site will be developed into a number of residential dwellings, our client is offering for sale one part of the existing building to be used as commercial premises; Use Class F1 & F2.
"Albert Street Commercial" comprises approximately 73sqm GIA (786sqf) of floor space, arranged across a ground floor (39sqm) and first floor (34sqm), the latter yet to be constructed. As the premises are currently at Base Build stage, there is an opportunity to finish the property to the purchaser's standard and preference.
Please contact Woodward & Bishopp directly regarding any enquiries.