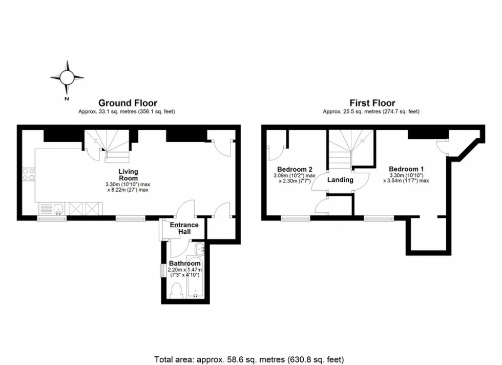
This property is located on Charles Street, a highly sought-after road situated just one street back from the vibrant seafront. Being offered with no onward chain, this two-bedroom terrace presents a prime opportunity for those looking to create a bespoke coastal home or a high-yield investment. The property requires modernisation throughout, providing a "blank canvas" for renovation to personal taste or for the rental market. Once inside the property comprises: entrance hall, bathroom and an open plan living/kitchen/dining room on the ground floor. Upstairs there are two bedrooms. Outside offers a front courtyard.
Call Woodward & Bishopp to arrange an internal viewing!
This property is located on Charles Street, a highly sought-after road situated just one street back from the vibrant seafront. Being offered with no onward chain, this two-bedroom terrace presents a prime opportunity for those looking to create a bespoke coastal home or a high-yield investment. The property requires modernisation throughout, providing a "blank canvas" for renovation to personal taste or for the rental market. Once inside the property comprises: entrance hall, bathroom and an open plan living/kitchen/dining room on the ground floor. Upstairs there are two bedrooms. Outside offers a front courtyard.
Call Woodward & Bishopp to arrange an internal viewing!